Pinta & Pausa
Junio 2025
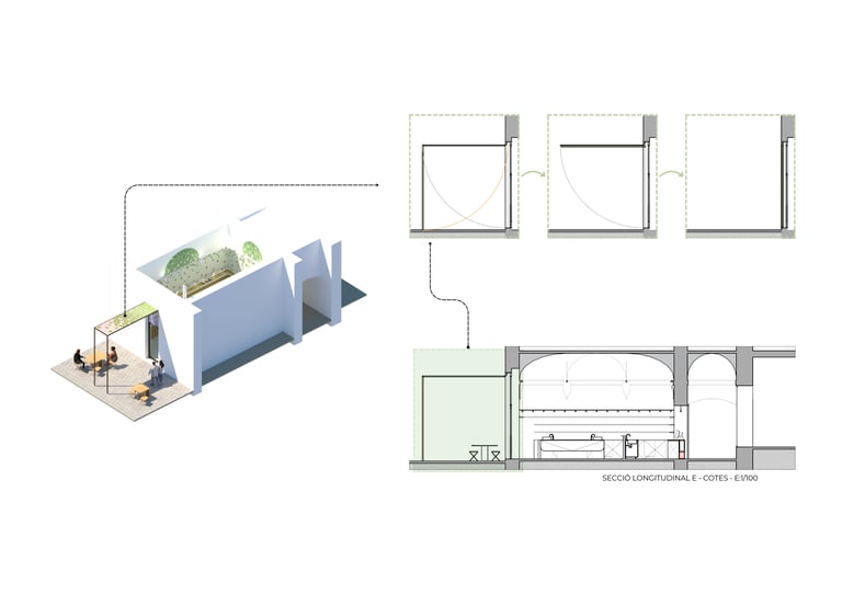
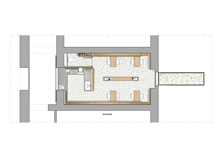
Proyecto de bar y taller de pintura sobre cerámica situado en la planta baja de la Escuela de Arte de Olot, concebido como un espacio híbrido donde arte, pausa y comunidad se encuentran. La propuesta combina cafetería y actividad creativa en un entorno inspirado en el modernismo y la naturaleza, fomentando la expresión artística, la interacción social y el bienestar cotidiano.
El diseño prioriza la flexibilidad del espacio, la circulación fluida y una atmósfera acogedora, convirtiendo el local en un punto de encuentro activo entre la escuela, el barrio y la ciudad.




























Contacto
Escríbenos para consultas o proyectos
Teléfono
+34 613043615
© 2025. All rights reserved.
